Villa Veera

2009

Villa Veera

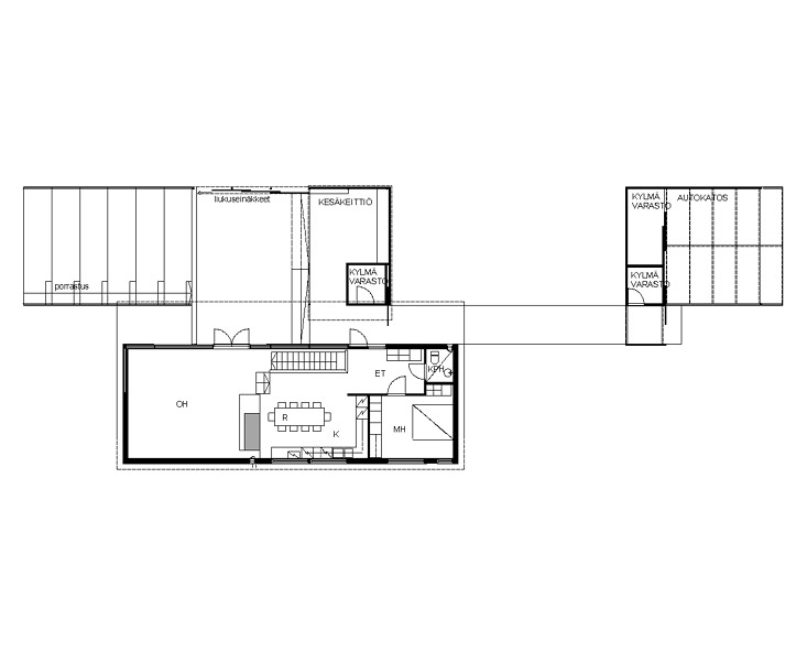
Syksyllä 2009 valmistunut Villa Veera sijaitsee Luvian Aspiskerin saaren länsirannalla ja sinne saavutaan tiheän mäntymetsän läpi. Rakennuksia varten tontilta raivattiin rantaan asti ulottuva lähes puuton sarka, joka istutetaan uudelleen matalaksi, rakennuksiin rajutuvaksi varvikoksi. Kesäpaikan varsinaiset ulko-oleskelutilat on keskitetty, tuulelta ja sateelta suojatulle, länteen avautuvalle atriumpihalle. Kulku sinne on johdettu autokatoksen läpi avointa siltaa pitkin, josta atrium jatkuu loivana portaikkona kohti saunarakennusta ja rantaa. Atriumpihan suunnittelussa on varauduttu sen sulkemiseen liukulasein ja kattamiseen markiiseilla. Yhdessä kesäkeittiön kanssa se muodostaa keskeisen ulko-olohuoneen, joka kokemusten mukaan on jo varhain keväällä käytettävissä. Kesällä pihaa voidaan tuulettaa sillan liukuoven ja pohjoispuolen liukusäleikköjen avulla.

Villa Veeran oleskelutilat avautuvat merelle ja atriumpihalle. Koivuvanerilla verhoillut oleskelutilat on rakennettu puurakenteisina betonirakenteisen kellarikerroksen päälle. Makuu- ja aputilat sijoittuvat viileään, betonirakenteiseen kellarikerrokseen. Sauna on rakennettu erillisenä, osittain maahanupotettuna mahdollisimman lähelle rantaa. Rakennusten puuverhoilussa ja säleiköissä on käytetty erikoishöylättyä, paksua sydänmäntyrimaa, joka on kuultokäsitelty saariston harmaaksi. Rimaverhoukset on toteutettu ns. rakotuuletuksin ja nurkkaliitokset on tehty puskuun. Terassi ja portaikko ovat painekyllästettyä mäntyä.

Sijainti: Luvia

Laajuus: 260 b-m2

Tilaaja: Yksityinen



Kuvat: Hannu Kiiskilä