Porvoon taidetehdas

2015

Porvoon taidetehdas

Keväällä 2007 Porvoon kaupunki järjesti Taidetehtaan kunnostamisesta ja viereisestä joenranta-alueesta suunittelu- ja investointikilpailun. Kilpailun voittajaryhmälle luovutettiin tehdasrakennuksen kunnostamista vastaan kaavoitettavaa rakennusoikeutta liike- ja asuinrakentamiseen. Kilpailua seurasi Kehittäjäryhmän Porvoon kaupungille tekemä kilpailuehdotuksen ohjelmallinen ja kaavallinen jatkokehitystyö, jonka pohjalta Taidetehtaasta ja siihen liitetystä Mediakeskuksesta sekä tulevasta hotellirakennuksesta päätettiin tehdä nykyaikainen kulttuuritapahtumia ja -palveluita sekä kaupungin liike-elämää yhdistävä tapahtuma- ja kongressikeskus.

Taideharrastus- ja ateljee-tilojen käytöstä vastaa Porvoon kaupungin kulttuuritoimi. Yhdessä muiden rakennusten kanssa Taidetehdas muodostaa monipuoliset puitteet tapahtumien ja kongressien järjestämiselle kaikkine kokous- ja ruokailupalveluineen yhteensä n. 1500 hengelle.

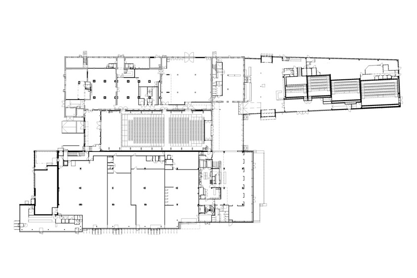
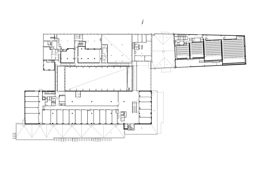
Toiminnan päätilana on akustiikaltaan erinomainen, erityisesti modernin musiikin esittämiseen tarkoitettu Avanti-sali. Salin äänenvaimennusta lisättiin avattavilla vaimennusverhoilla muita käyttötarkoituksia varten. Nousuprofiililtaan erilaiset katsomotyypit toteutetaan tilaa varten erityisesti suunnitelluilla katsomoelementeillä, joilla sali voidaan muuttaa tasalattiaisesta näyttely- ja tapahtumatilasta teatteriksi, klassiseksi konserttisaliksi tai kokousauditorioksi.

Rinnakkaistapahtumia varten vieressä on muunneltava, neutraali Tehdassali. Pieniä kokousryhmiä varten on ylälämpiön yhteydessä valoisat, jaettavissa olevat kokoushuoneet. Kaikkiin tiloihin on järjestetty täysimittaiset tekniset valmiudet eri produktioiden tarvitsemille AV-liitännöille ja laitteille, televisioinnille sekä valo- ja äänitekniikalle. Kokoustoiminnan täysi kapasitetti saavutetaan ottamalla käyttöön Mediakeskuksen neljä digitaalista elokuvasalia, jotka ovat päiväsaikaan vapaina.

Taidetehtaan korjauksessa säilytettiin asemakaavassa suojeltavaksi määrätyt osat lukuunottamatta rakennuksen Eteläsiipeä, joka vajoamien ja peruuttamattomien rakenne- ja kosteusvaurioiden vuoksi purettiin ja korvattiin ulkoiselta hahmoltaan ja mittasuhteiltaan vanhan rakennuksen kanssa verrannollisella uudisosalla. Eteläsiiven 2. kerrokseen sijoitettiin taiteilijoiden ateljee- ja näyttelytilat, jotka yhdistettiin ylälämpiöön ja kokoustiloihin.

Eteläsiiven 1. kerroksen pääosa on vuokrattavaa liiketilaa, joka avautuu alueen läpi kulkevalle kauppakujalle. Kellarikerros on käytetty huolto- ja pysäköintitiloihin.

Sijainti: Porvoo

Laajuus: 16 600 brm2



Kuvat: Sirpa Laaninen

Kuvat: Kimmo Karkkunen

Kuvat: Kari Palsila



Katso myös:

Porvoon Taidetehtaan pistetalot

Porvoon hotelli ja Citymarket