Villa Sippola

2004

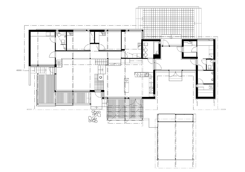
Villa Sippola

Korkealuokkainen liimapuu-, puu- ja harkkorakenteinen asuinrakennus, jossa on sovellettu passiivisia ja aktiivisia energiansäästöratkaisuja sekä ilmastollisen suunnittelun periaatteita.

Sijainti: Tuusula

Laajuus: 270 b-m2

Tilaaja: Yksityinen



Kuvat: Matti Karjanoja, Hannu Kiiskilä, Markus Kuusela