Kajaanin pakkaamo

2014

Kajaanin pakkaamo

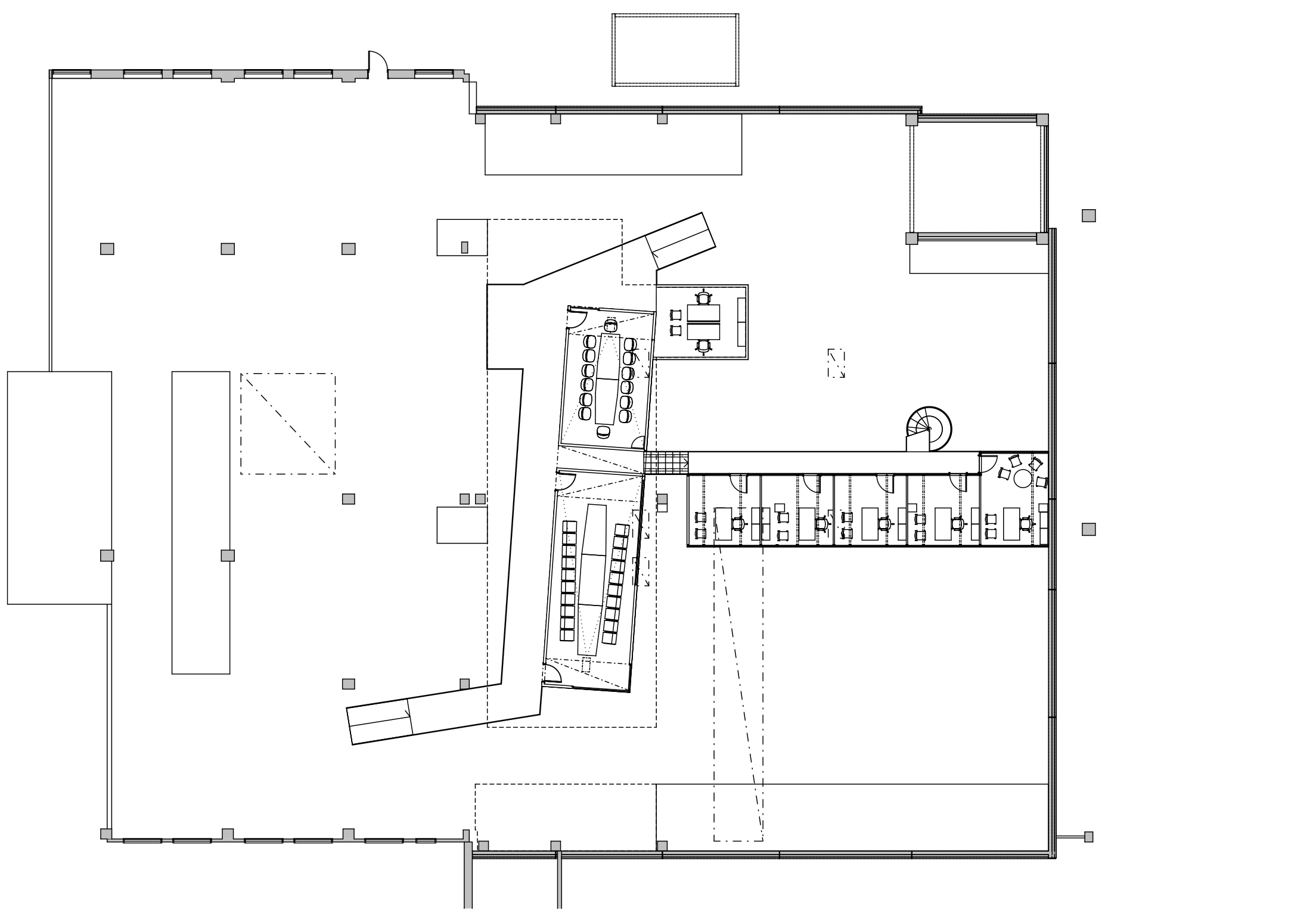
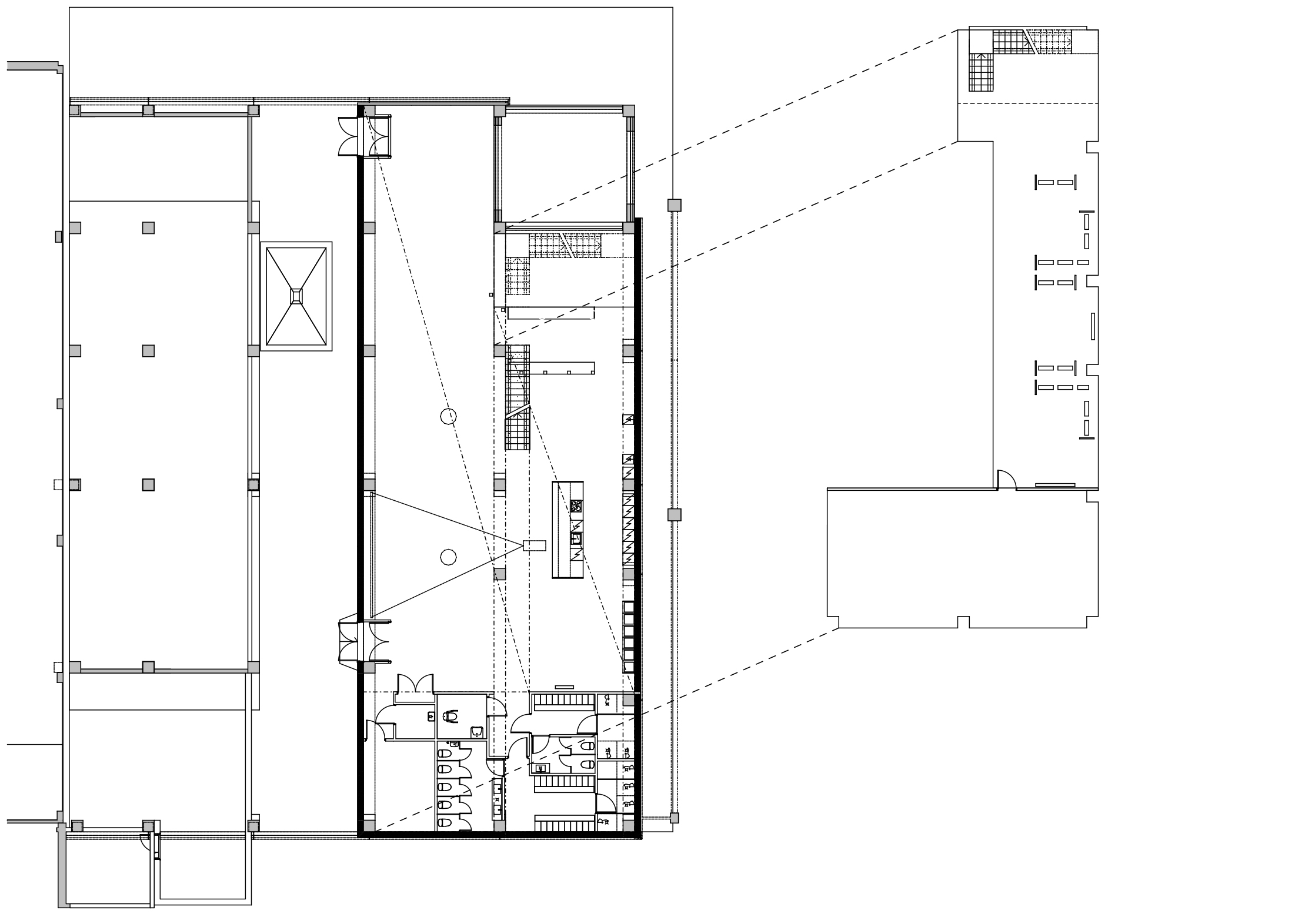
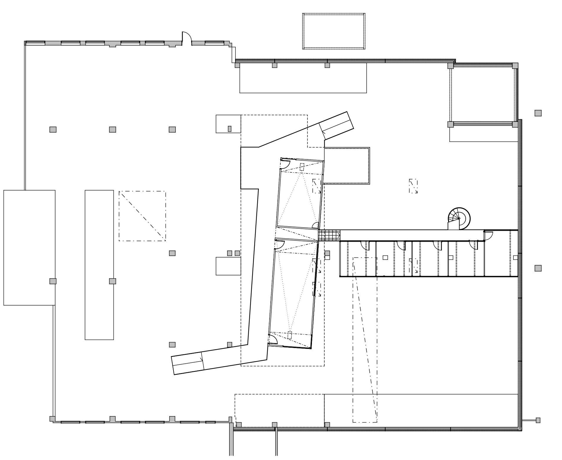
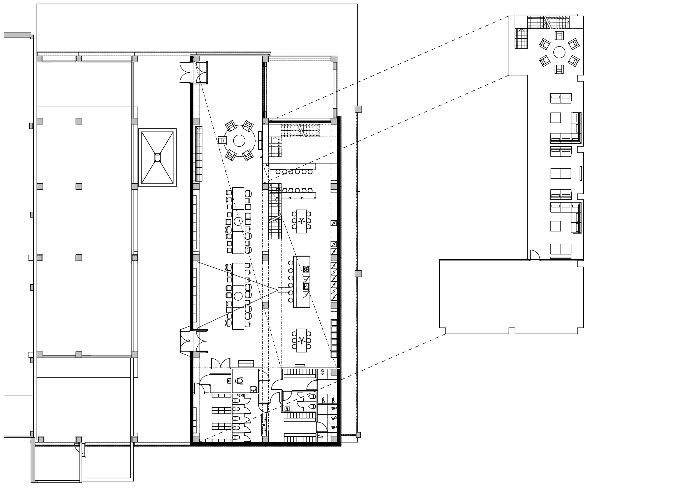
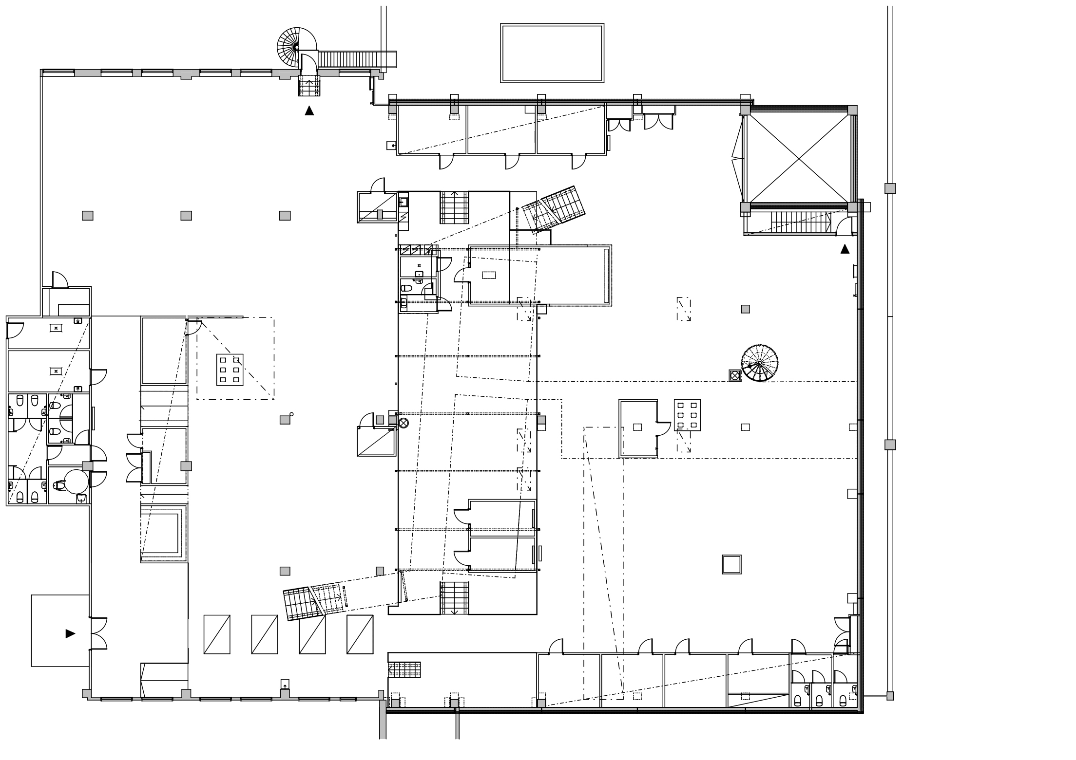
Palvelukeskuksen tilat on sovitettu entisen Kajaanin paperitehtaan tiloihin. Toimeksiantoon kuului vanhan paperipaakkaamon tehdastilojen peruskorjaus ja tehdastilan käyttötarkoituksen muutos monitilakonseptin mukaiseksi toimistotyötilaksi. Hankkeessa ARRAK Arkkitehdit toimi käyttäjän arkkitehtina. Teknisestä toteutuksesta vastasi Suunnittelutoimisto Määttä Oy.

Lähtökohdaksi annettiin työntekijämääristä tavoitteet, muutoin tilojen suunnitteluun annettin vapaat kädet. Toteutuksessa hyödynnettiin korkea tehdastila ja paperinpakkauskoneiden betoniset konepenkit ja -montut. Tehdashistoria ja teollinen ilme säilytettiin mahdollisuuksien mukaan. 

Laajimman konemontun kohdalle sijoitettiin tiloja kahteen kerrokseen. Montun ylle rakennettiin teräspalkkien varaan aaltopeltiverhoiltu neuvottelukontti, jonka alapuolelle montuun sijoitettiin avotyötiloja. Varsinaisen avotyötilan yhteyteen ja neuvottelukontin korkeudelle rakennettiin äänieristettyjä työskentelytiloja kulkusilta- ja porrasyhteyksin. Pienet konemontut valaistiin ja niihin tehtiin lasikannet. Yläpohjaan, rakennusrungon keskelle puhkaistiin kaksi suurta aukkoa luonnonvalolle.

Sosiaali- ja taukotilat rakennettiin työtilojen alapuolella olevaan ulkotilaan, vanhaan paperipakkaamon lähetystilaan. Tilojen välisiä kulkuyhteyksissä hyödynnettiin vanhaa tavarahissiä ja vanhaa porrasyhteyttä. Korkeaan taukotilaan sijoitettiin työtekijöiden käyttöön keittiö, iso avotila, lepoparvi ja sosiaalitilat. Tilojen kalusteuksessa hyödynnettiin käyttäjän vanhoja kalusteita. Taukotilaan kunnostettiin kalusteita mm. puutuoleja ja billnäss- kirjakaappeja, osa kalusteista teetettiin. Avotyötilassa käytettiin vanhoja toimistokalustesarjoja, joita täydennettiin uusilla. Valaistus toteutettiin kokonaisuudessaan led-valoilla ja pyrittiin luomaan erilaisia tunnelmaympäristöjä.

Sijainti: Kajaani

Bruttoala: 3000 bm2

Tilaaja: UBM / Renforssin Ranta



Kuvat: Sirpa Laaninen