Aurinkokello

1985

Aurinkokello

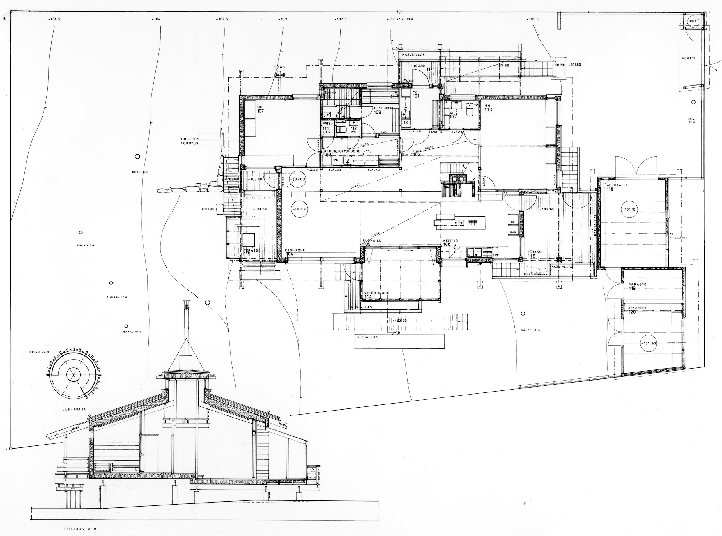
Puurakenteinen asuinrakennus Aurinkokello on rakennettu Jyväskylään, Kuokkalan asuntomessuille vuonna 1985. Rakennustekniikassa, asumis- ja energiaratkaisuissa on noudatettu kestävän kehityksen periaatteita. Asumisentilat, ikkuna-aukoitukset ja niihin liittyvät puolilämpimät tilat ovat järjestetty auringon kierron mukaan. Erityisyytenä rakennuksessa on tervattu puukatto, joka suojaa alapuolista huopakatetta ja lisäeristää lämpötilavaihteluilta.

Sijainti: Jyväskylä

Sisustussuunnittelu: Marita Leppänen



Kuvat: Matti Karjanoja, Jukka Riihelä, Paavo Hartikainen / Avotakka-lehti